Appartamento in Vendita a Bologna – Porto

  • 895.000,00€
via galliera, Porto, Bologna, Bologna, Italia
Evidenza Vendita
Evidenza Vendita
via galliera, Porto, Bologna, Bologna, Italia
  • 895.000,00€

Scheda immobile

Codice Immobile: BOC895FED
  • Appartamento
  • Tipologia Immobile
  • 4
  • Camere da letto
  • 3
  • Bagni
  • 0
  • Garage
  • 234
  • mq
  • 1800
  • Anno Costruzione

Descrizione

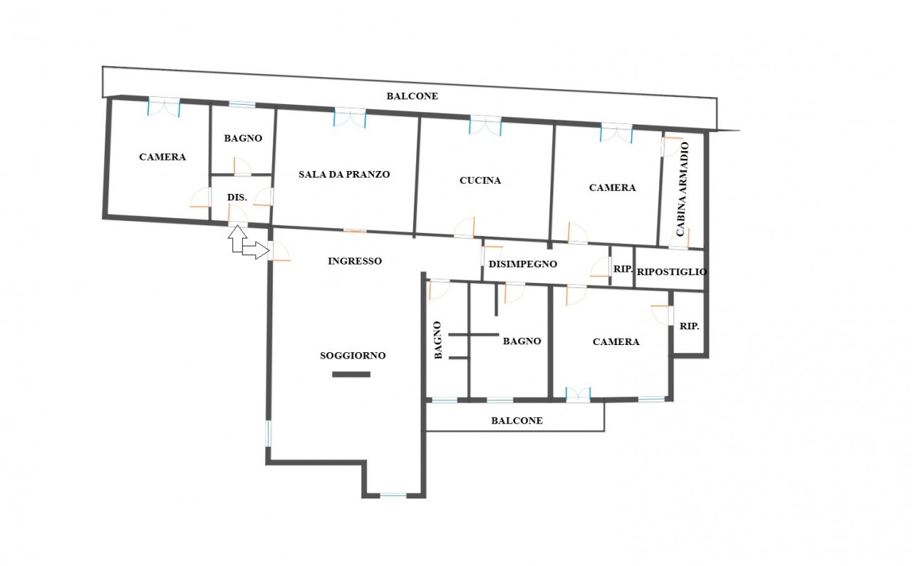
A pochi passi dal Centro Storico e in posizione strategica per la Stazione Centrale e l’Autostazione, proponiamo un luminoso appartamento di 225 mq circa, situato al quinto piano di un palazzo signorile dotato di ascensore.
L’immobile si distingue per gli ampi spazi interni e per la funzionale distribuzione degli ambienti. Dall’ingresso si accede a un generoso soggiorno, ideale come zona conviviale dedicata all’accoglienza degli ospiti; a seguire, una cucina abitabile e una sala da pranzo che, grazie alla sua versatilità, può essere adibita a quarta camera. Il reparto notte comprende tre camere da letto, due delle quali dotate di cabina armadio, oltre a tre bagni finestrati e due comodi ripostigli.

L’abitazione si presenta in ottime condizioni e vanta finiture di pregio: pavimento alla veneziana nella zona giorno, parquet nelle camere e bagni rifiniti in marmo. Gli infissi in alluminio nero con doppi vetri, il riscaldamento autonomo e la climatizzazione Daikin garantiscono comfort ed efficienza. La sicurezza è assicurata da doppia porta blindata, di cui la seconda in vetro antisfondamento e impianto di allarme.

La proprietà è impreziosita da due spazi esterni: un balcone che si estende lungo il fronte principale dell’edificio, accessibile da tutti gli ambienti serviti e caratterizzato da una suggestiva vista sui colli, e un secondo balcone, più riservato, affacciato sull’interno.

La presenza di due ingressi distinti al piano offre anche la possibilità di frazionare comodamente l’appartamento in due porzioni autonome. Gli attacchi per la cucina già predisposti nella sala da pranzo consentono infatti di ricavare un bilocale indipendente, mantenendo la restante parte come unità principale.

Ideale come ottimo investimento per famiglie numerose e anche per professionisti che volessero unire il luogo di lavoro con l’abitazione principale.

Completano la proprietà, inclusi nel prezzo, una spaziosa cantina di circa 20 mq e un posto auto coperto in autorimessa comune, limitrofo all’edificio. È inoltre possibile l’acquisto di un secondo posto auto al prezzo di € 35.000.
Classe energetica E, in fase di aggiornamento in seguito agli interventi di riqualificazione effettuati, quali il rifacimento del tetto, facciata e moderna caldaia a condensazione, in quanto migliorativi delle prestazioni energetiche dell’immobile.

Libero a Rogito.
Immobile gestito in collaborazione con Center Casa S.r.l.
Servizio CAMBIO CASA, la soluzione MONDORE per chiunque cerchi una nuova abitazione dovendo vendere il proprio immobile.

  • Indirizzo via galliera
  • Comune Bologna
  • Provincia Bologna
  • Zona Porto

Dettagli

Aggiornato su Gennaio 14, 2026 presso 12:15 am
  • Codice Immobile: BOC895FED
  • Prezzo: 895.000,00€
  • Dimensioni Immobile: 234 mq
  • Camere da letto: 4
  • Bagni: 3
  • Garage: 0
  • Anno Costruzione: 1800
  • Tipologia Immobile: Appartamento
  • Contratto Immobile: Vendita

Dettagli Aggiuntivi

  • Certificazione: Classe E 136.64 kWh/m2anno
  • Consegna: Rogito
  • Piano: 5 di 6
  • Stato immobile: ottimo
  • Giardino privato: -
  • Taverna: -
  • Cantina: SI
  • Garage: -
  • Posto auto: SI
  • Anno costruzione: 1800
  • Ascensore: SI
  • Spese condominiale:
  • Terrazzi:
  • Sottotetto/Mansarda: -

360° Virtual Tour

Confronta gli annunci

Confronta
Federico Brosco
  • Federico Brosco