Ufficio in Vendita a Bologna – Massarenti

  • 500.000,00€
via Pizzardi, Massarenti, Bologna, Bologna, Italia
Evidenza Vendita
Evidenza Vendita
via Pizzardi, Massarenti, Bologna, Bologna, Italia
  • 500.000,00€

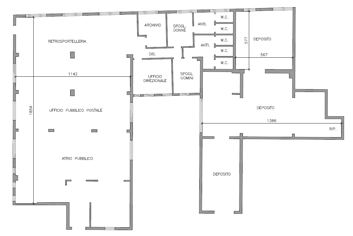
Scheda immobile

Codice Immobile: DIR500ASE
  • Ufficio
  • Tipologia Immobile
  • 0
  • Garage
  • 477
  • mq
  • 1930
  • Anno Costruzione

Descrizione

BOLOGNA – adiacenze via Palagio Palagi. Opportunità imperdibile per investitori. Nelle immediate vicinanze dell’Ospedale Sant’Orsola, in zona strategica. Al piano terreno di uno edificio residenziale, MONDORE propone un ampio loca solidità e continuità economica. La richiesta è di € 500.000,00, con una rendita lorda del 8% annuo. Le buone condizione manutentive del locale soddisfano le esigenze elevate dei conduttori, permettendo così una gestione fluida della locazione. Completano la proprietà i 5 posti auto scoperti. Un’occasione davvero interessante per un investimento sicuro e redditizio. Classe Energetica D.

  • Indirizzo via Pizzardi
  • Comune Bologna
  • Provincia Bologna
  • Zona Massarenti

Dettagli

Aggiornato su Febbraio 4, 2026 presso 5:15 am
  • Codice Immobile: DIR500ASE
  • Prezzo: 500.000,00€
  • Dimensioni Immobile: 477 mq
  • Garage: 0
  • Anno Costruzione: 1930
  • Tipologia Immobile: Ufficio
  • Contratto Immobile: Vendita

Dettagli Aggiuntivi

  • Certificazione: Classe D 496.99 kWh/m3anno
  • Consegna:
  • Piano: piano terra di 5
  • Stato immobile: buono
  • Giardino privato: -
  • Taverna: -
  • Cantina: -
  • Garage: -
  • Posto auto: -
  • Anno costruzione: 1930
  • Ascensore: -
  • Spese condominiale:
  • Terrazzi:
  • Sottotetto/Mansarda: -

Confronta gli annunci

Confronta
Andrea Serafini
  • Andrea Serafini